Funkcjonalne (niezbędne)
Analityczne
Marketingowe

Mieszkanie na sprzedaż Wadowice

3 pokoje
73.00 m²
9 315,07 zł/m2
2 piętro
MPA-MS-57
Oblicz ratę kredytu

680 000 zł

Mieszkanie na sprzedaż
Bez prowizji
Video

Szczegóły oferty

Symbol oferty MPA-MS-57
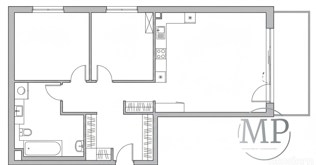
Powierzchnia 73,00 m²
Liczba pokoi 3
Rodzaj budynku blok
Standard
Piętro 2
Liczba pięter w budynku 4
Stan lokalu Do wprowadzenia
Okna nowe PCV
Instalacje wymienione
Balkon jest
Liczba balkonów 1
Rok budowy 2015
Umeblowanie umeblowane
Alarm tak
Winda tak
Liczba wind 1
Usytuowanie dwustronne
Drzwi antywłamaniowe tak
Klucze tak
Maciej Góra

Maciej Góra

Agent nieruchomości, Zarządca nieruchomości
Nr licencji: 27993

Napisz wiadomość 30 Ofert

Opis nieruchomości

Przestronne, jasne 3-pokojowe mieszkanie z dużym balkonem – Wadowice

Na sprzedaż komfortowe, bardzo dobrze zaprojektowane mieszkanie o powierzchni 72,4 m², położone na 2. piętrze nowoczesnego budynku w jednej z najbardziej cenionych części Wadowic.

Mieszkanie wyróżnia się funkcjonalnym układem, dużą ilością światła dziennego oraz ponadprzeciętną przestrzenią – idealne dla rodziny, pary lub osób pracujących zdalnie.

Układ pomieszczeń:

  • przestronny salon z aneksem kuchennym i wyjściem na duży balkon
  • dwie ustawne sypialnie
  • komfortowa łazienka z wanną i prysznicem
  • przedpokój z pojemną zabudową na wymiar

Wnętrze utrzymane w neutralnym, ponadczasowym stylu, gotowe do zamieszkania bez dodatkowych nakładów finansowych. Wysoki standard wykończenia, dobrej jakości materiały oraz przemyślana zabudowa.

Atuty nieruchomości:
✔ duży metraż – rzadkość na lokalnym rynku
✔ balkon idealny do wypoczynku
✔ miejsce postojowe i komórka lokatorska
✔ niskie koszty utrzymania
✔ spokojna, dobrze skomunikowana okolica

W pobliżu sklepy, szkoły, przedszkola, tereny spacerowe oraz pełna infrastruktura miejska.

Materiał wideo

Lokalizacja nieruchomości

Kalkulatory

Kalkulator kredytowy

Wysokość raty

PLN
%

Kalkulator kosztów

Podatek od czynności cywilno-prawnych

Taksa notarialna
(opłata notarialna)

Wniosek o wpis do KW

VAT od prowizji
agencji nieruchomości

VAT od taksy notarialnej
(opłaty notarialnej)

Prowizja agencji nieruchomości

Wypisy aktu notarialnego

Razem

Uwaga: mogą wystąpić dodatkowe opłaty za założenie księgi wieczystej oraz ustanowienie hipoteki.

PLN
PLN
PLN
PLN
PLN
PLN
%
PLN

Podobne oferty

Bez prowizji

Mieszkanie na sprzedaż

Wadowice

3 pokoje 52 m2 10 084,03 zł/m2
Bez prowizji
Oferta na wyłączność
Video

Mieszkanie na sprzedaż

Wadowice

2 pokoje 67 m2 10 149,25 zł/m2
Oferta na wyłączność
Video
Bez prowizji

Mieszkanie na sprzedaż

Wadowice

3 pokoje 63 m2 8 000,00 zł/m2
Bez prowizji

Agent nieruchomości, Zarządca nieruchomości

Proszę wprowadzić poprawne imię i nazwisko
Proszę wprowadzić poprawny numer telefonu
Proszę wprowadzić poprawny adres e-mail
Proszę zaznaczyć wymagane zgody
Rozwiąż równanie:
20 5
Niepoprawny wynik